Electrostatic Discharge (ESD) Sliding Systems
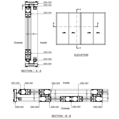
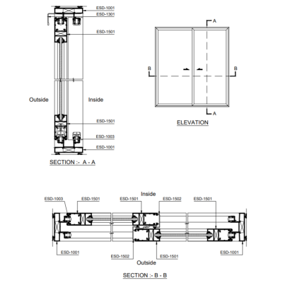
The ESD Slide range of doors and windows offers homebuilders a perfect alternative for patios; allowing you to completely slide open and expand your internal space to your specific architectural requirements, either double track or triple track options. This design offers you unobstructed views of your exterior environment and entertainment areas, in addition to giving an enclosed space a more open feeling with its glass panels giving it the effect of a sliding glass wall rather than solid separating elements. This sliding system also utilizes less internal spaces, requiring only the frame width instead of internal swing space as in the case of conventional swing doors and windows.
Features
- Designed for very high performance
- Suited to almost any commercial or architectural application
- Extended product options for large configurations
- Tested for air, water leakages and wind resistance
- High performance roller hardware for durability
- Standard and multi-stack configurations of up to 6 panels
- Multi point locking system
- Single Glazing
Available in a range of finishes and custom designs.
Compatible with the full range of international standard locking systems.
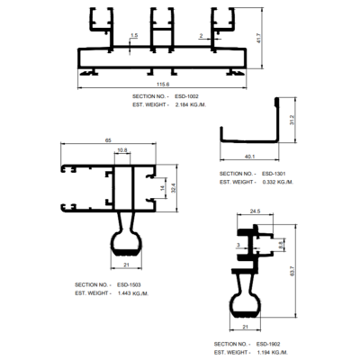
Product Specification
























